
82 – Ivry
Maitrise d’ouvrage : Emerige Résidentiel + Sadev 94 (aménageur)
Mission : Complète (loi MOP)
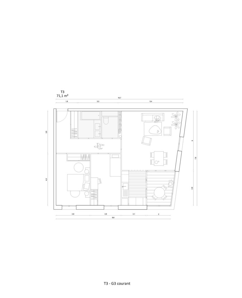
Programme : 222 logements libres + commerces
Performances : RT 2012 - façade préfabrication béton et structure bois
Lieu : Ivry-sur-Seine (94)
Surface : 15 161 m²
Budget : -
Calendrier : Concours 2019
L’opération est située à l’est de la ville d’Ivry-sur-Seine, à proximité de la boucle formée par la Seine et la Marne. Ces terrains plats, qui étaient autrefois une plaine alluviale, ont été propices au développement de l’industrie le long de la vallée. Les terrains concernés par l’opération sont principalement d’anciennes usines et ateliers.
Proche de réalisations emblématiques de grands ensembles de logements, telles que celle remarquable de l’architecte Jean Renaudie, ainsi que de réalisations récentes de qualité, cette opération s’appuie sur une analyse approfondie de la situation actuelle. Elle vise à mettre en valeur les qualités architecturales, urbaines, paysagères et constructives, tout en s’inscrivant dans le schéma directeur du quartier.
Notre ambition est de créer un projet qui complète l’îlot tout en respectant les bâtiments et les maisons déjà présents sur le site, afin de favoriser une véritable vie de quartier agréable pour tous. Nous avons travaillé sur la volumétrie générale du projet, en accord avec le concept urbain proposé. Tous les logements disposent de balcons, de terrasses ou de loggias pour offrir des espaces extérieurs.
Télécharger la fiche synthèse
















